Rif: LSS-XX-A2
LISSONE
MONZA BRIANZA € 230.000- Appartamento
- Vendita
- 77 Mq
- 2 Vani
- 1 Camere
- 1 Bagni
- Giardino 48 mq
- EPI: 175 kwh/m2 anno
- Classe energetica: A4
- Descrizione
- Dettaglio immobile
- Consistenze
- Mappa
- Planimetrie
- Video
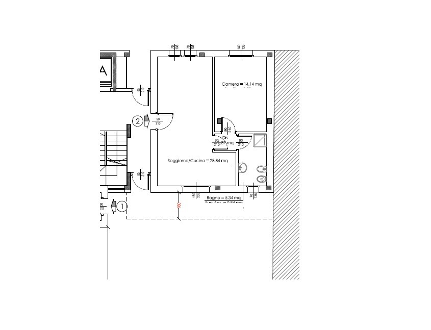
Prossima costruzione consegna autunno 2026 - Lissone Via XX Settembre : Ingresso, soggiorno con cucina a vista, camera, bagno, portico di mq. 7 e giardino privato mq. 50
Lissone nelle immediate vicinanze del centro sta sorgendo un nuovo piccolo complesso residenziale esclusivo costituito da due eleganti mini-palazzine. Il Progetto prevede un totale di 12 appartamenti progettati per garantire comfort e qualità abitativa e N. 12 Box doppi a Euro 30.000 cad. e posti auto coperti singoli a euro 15.000 cad.. Le unità abitative saranno dotate di finiture moderne e personalizzabili, con luminosi spazi e ben distribuiti. tra le opzioni disponibili vi saranno appartamenti di varie metrature di 2/3/4 locali con balconi, terrazzini e giardini privati. Il complesso sarà inserito in un contesto tranquillo ma strategico grazie alla vicinanza al centro e principali servizi quali scuole, trasporti pubblici e aree verdi. E' inoltre prevista un'attenzione particolare alla sostenibilità con impianti di ultima generazione e soluzioni per il risparmio energetico. Se desiderate ulteriori specifiche su questo progetto siamo disponibili per incontri presso il nostro studio al fine di fornirvi ogni ulteriore informazione aggiuntiva
Lissone nelle immediate vicinanze del centro sta sorgendo un nuovo piccolo complesso residenziale esclusivo costituito da due eleganti mini-palazzine. Il Progetto prevede un totale di 12 appartamenti progettati per garantire comfort e qualità abitativa e N. 12 Box doppi a Euro 30.000 cad. e posti auto coperti singoli a euro 15.000 cad.. Le unità abitative saranno dotate di finiture moderne e personalizzabili, con luminosi spazi e ben distribuiti. tra le opzioni disponibili vi saranno appartamenti di varie metrature di 2/3/4 locali con balconi, terrazzini e giardini privati. Il complesso sarà inserito in un contesto tranquillo ma strategico grazie alla vicinanza al centro e principali servizi quali scuole, trasporti pubblici e aree verdi. E' inoltre prevista un'attenzione particolare alla sostenibilità con impianti di ultima generazione e soluzioni per il risparmio energetico. Se desiderate ulteriori specifiche su questo progetto siamo disponibili per incontri presso il nostro studio al fine di fornirvi ogni ulteriore informazione aggiuntiva
Contratto Vendita
Rif LSS-XX-A2
Prezzo € 230.000
Provincia Monza Brianza
Comune Lissone
Indirizzo Via 20 Settembre 32">
Vani 2
Camere 1
Bagni 1
Classe energetica
A4 (DL 90/2013)
EPgl,nren 175 kwh/m2 anno
Riscaldamento centralizzato
Condizioni nuova costruzione
Spese condominiali € 120
Anno di costruzione 2026
Ascensore si
Cucina angolo cottura
| Descrizione | Superficie | Sup. comm. |
|---|---|---|
| Principali | ||
| Immobile - piano terra | 64 Mq | 64 Mqc |
| Giardino/Resede | 48 Mq | 10 Mqc |
| Esterno - piano terra | 7 Mq | 4 Mqc |
| Totale | 78 Mqc | |
Zoom della mappa
Apri con:
Apple Maps
Google Maps
Waze
Apri la mappa







