Rif: UV-vll
USMATE VELATE
MONZA BRIANZA € 630.000- Villa
- Vendita
- 336 Mq
- 5 Vani
- 3 Camere
- 4 Bagni
- Giardino 730 mq
- Garage 58 mq
- EPI: 175 kwh/m2 anno
- Classe energetica: F
- Descrizione
- Dettaglio immobile
- Consistenze
- Mappa
- Planimetrie
A pochi passi dal centro di Usmate Velate, in una posizione tranquilla e rialzata rispetto alla strada, proponiamo in vendita una splendida villa singola, circondata da un curato giardino privato su quattro lati. Situata in una via poco trafficata, la proprietà garantisce privacy e comfort in un contesto esclusivo. Prezzo Trattabile!
Ristrutturata nel 1998, la villa si distingue per le sue finiture raffinate e dettagli di pregio, progettati con cura per garantire stile e funzionalità.
Ogni spazio è stato studiato nei minimi particolari, creando un ambiente armonioso ed esclusivo. L'ingresso dal lato strada alla Villa avviene attraverso una scenografica e agevole scalinata che non solo valorizza l'ingresso ma contribuisce anche a creare un'atmosfera riservata e accogliente.
Caratteristiche dell' immobile
Piano terra: ingresso di rappresentanza, elegante zona giorno con ampio salotto, salottino relax e sala da pranzo, arricchita da boiserie in ogni ambiente. Cucina abitabile e bagno di cortesia.
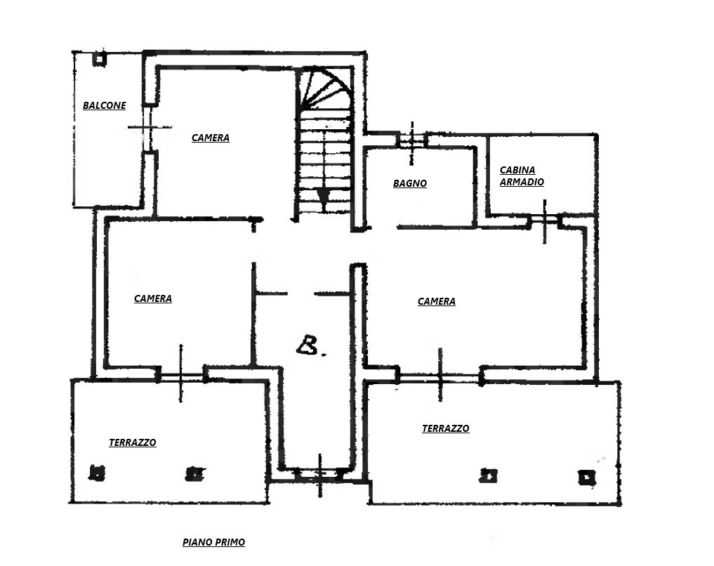
Piano superiore: tre ampie camere da letto, cabina armadio nella matrimoniale, doppi servizi con vasca idromassaggio e due ampi terrazzi.
Piano seminterrato: spaziosa taverna, area cucina-pranzo, con locale spa, lavanderia e stireria/guardaroba e bagno di servizio
Autorimessa: box quasi quadruplo + ulteriori posti auto coperti.
Giardino privato su 4 lati di 650 mq, curato nel verde e nella piantumazione, ben esposto alla luce del sole, con area pranzo pavimentata e salottino/zona conversazione vicino all'ingresso principale.
Una residenza esclusiva e sofisticata, perfetta per chi cerca privacy eleganza, comfort e ampi spazi in una delle zone più richieste.
Ristrutturata nel 1998, la villa si distingue per le sue finiture raffinate e dettagli di pregio, progettati con cura per garantire stile e funzionalità.
Ogni spazio è stato studiato nei minimi particolari, creando un ambiente armonioso ed esclusivo. L'ingresso dal lato strada alla Villa avviene attraverso una scenografica e agevole scalinata che non solo valorizza l'ingresso ma contribuisce anche a creare un'atmosfera riservata e accogliente.
Caratteristiche dell' immobile
Piano terra: ingresso di rappresentanza, elegante zona giorno con ampio salotto, salottino relax e sala da pranzo, arricchita da boiserie in ogni ambiente. Cucina abitabile e bagno di cortesia.
Piano superiore: tre ampie camere da letto, cabina armadio nella matrimoniale, doppi servizi con vasca idromassaggio e due ampi terrazzi.
Piano seminterrato: spaziosa taverna, area cucina-pranzo, con locale spa, lavanderia e stireria/guardaroba e bagno di servizio
Autorimessa: box quasi quadruplo + ulteriori posti auto coperti.
Giardino privato su 4 lati di 650 mq, curato nel verde e nella piantumazione, ben esposto alla luce del sole, con area pranzo pavimentata e salottino/zona conversazione vicino all'ingresso principale.
Una residenza esclusiva e sofisticata, perfetta per chi cerca privacy eleganza, comfort e ampi spazi in una delle zone più richieste.
Contratto Vendita
Rif UV-vll
Prezzo € 630.000
Provincia Monza Brianza
Comune Usmate Velate
Indirizzo Via Leonardo da Vinci 23">
Vani 5
Camere 3
Bagni 4
Classe energetica
F (DL 192/2005)
EPI 175 kwh/m2 anno
Riscaldamento autonomo
Condizioni ottime condizioni
Anno di costruzione 1977
Cucina abitabile
| Descrizione | Superficie | Sup. comm. |
|---|---|---|
| Principali | ||
| Immobile - piano terra | 107 Mq | 107 Mqc |
| Immobile - 1° piano | 101 Mq | 101 Mqc |
| Terrazza - piano terra | 22 Mq | 6 Mqc |
| Terrazza - 1° piano | 46 Mq | 12 Mqc |
| Giardino/Resede | 730 Mq | 36 Mqc |
| Box/Garage - seminterrato | 58 Mq | 29 Mqc |
| Posto auto | 51 Mq | 15 Mqc |
| Altro - seminterrato | 100 Mq | 30 Mqc |
| Totale | 336 Mqc | |
Zoom della mappa
Apri con:
Apple Maps
Google Maps
Waze
Apri la mappa







