Rif: brs-cpp
BRIOSCO
MONZA BRIANZA € 350.000- Villa
- Vendita
- 492 Mq
- 4 Vani
- 1 Camere
- 2 Bagni
- Giardino
- Garage 168 mq
- EPI: Non disp.
- Classe energetica: Non indicata
- Descrizione
- Dettaglio immobile
- Consistenze
- Mappa
- Planimetrie
- Video
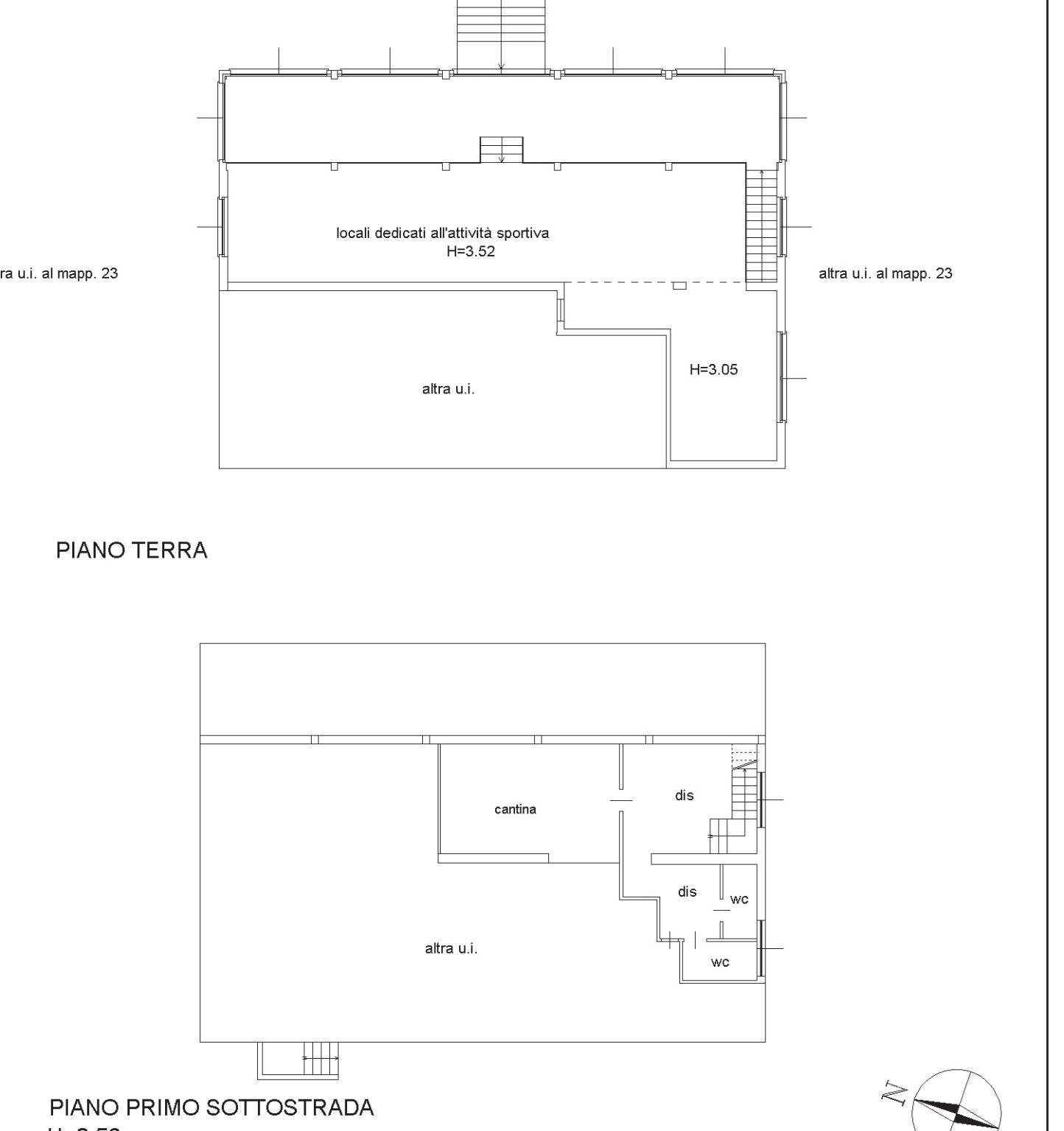
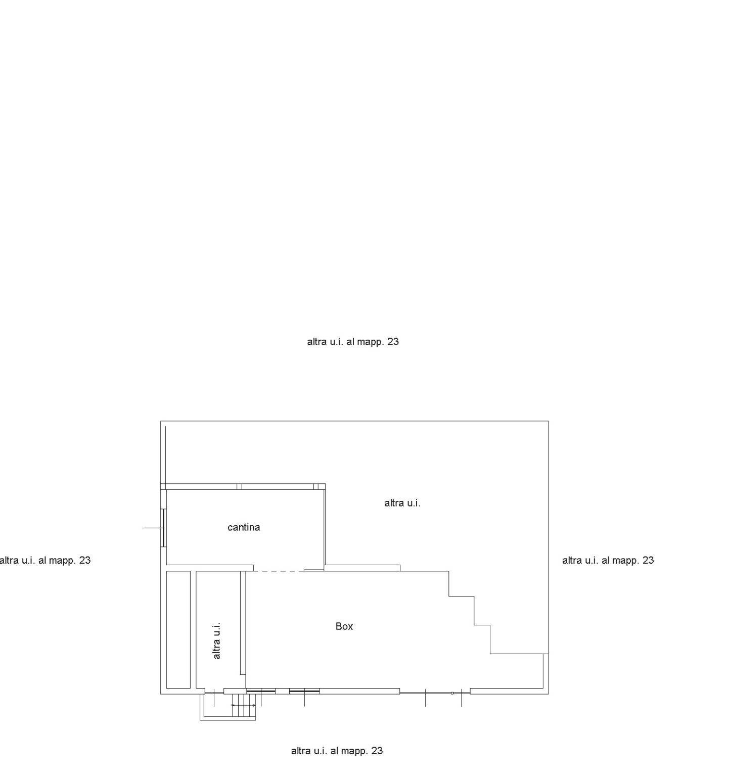
Briosco, In località Capriano, nel cuore della Brianza, proponiamo in vendita area agricola di mq. 32.000 con sovrastante edifico di totali mq. 492 diviso in area commerciale per attività sportiva (mq. 228) e unità residenziale composta da ampio appartamento di due locali cucina abitabile e servizio completamente ristrutturato di mq. 96 ( con ingressi separati) e a mq. 168 di seminterrato con cantine, depositi spogliatoi servizi e Box auto. L'area agricola è recintabile solamente con strutture in legno per consentire il passaggio della fauna. Originariamente l'area e la struttura erano sede di storica attività sportiva di tiro al piattello.
Contratto Vendita
Rif brs-cpp
Prezzo € 350.000
Provincia Monza Brianza
Comune Briosco
Indirizzo Via Ugo Foscolo">
Vani 4
Camere 1
Bagni 2
Classe energetica
Non indicata
Riscaldamento autonomo
Condizioni da ristrutturare
Anno di costruzione 1980
Cucina abitabile
| Descrizione | Superficie | Sup. comm. |
|---|---|---|
| Principali | ||
| Immobile - 1° piano | 96 Mq | 96 Mqc |
| Box/Garage - piano terra | 62 Mq | 62 Mqc |
| Cantina - seminterrato | 228 Mq | 228 Mqc |
| Box/Garage - seminterrato | 106 Mq | 106 Mqc |
| Accessorie | ||
| Terreno - piano terra | 32.000 Mq | 3.200 Mqc |
| Totale | 3.692 Mqc | |
Zoom della mappa
Apri con:
Apple Maps
Google Maps
Waze
Apri la mappa







