Rif: MNZ-TSC3
MONZA
MONZA BRIANZA | - zona San Giuseppe € 464.000- Appartamento
- Vendita
- 126 Mq
- 4 Vani
- 3 Camere
- 2 Bagni
- EPI: 16,43 kwh/m2 anno
- Classe energetica: A3
- Descrizione
- Dettaglio immobile
- Consistenze
- Mappa
- Planimetrie
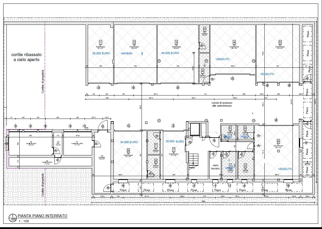
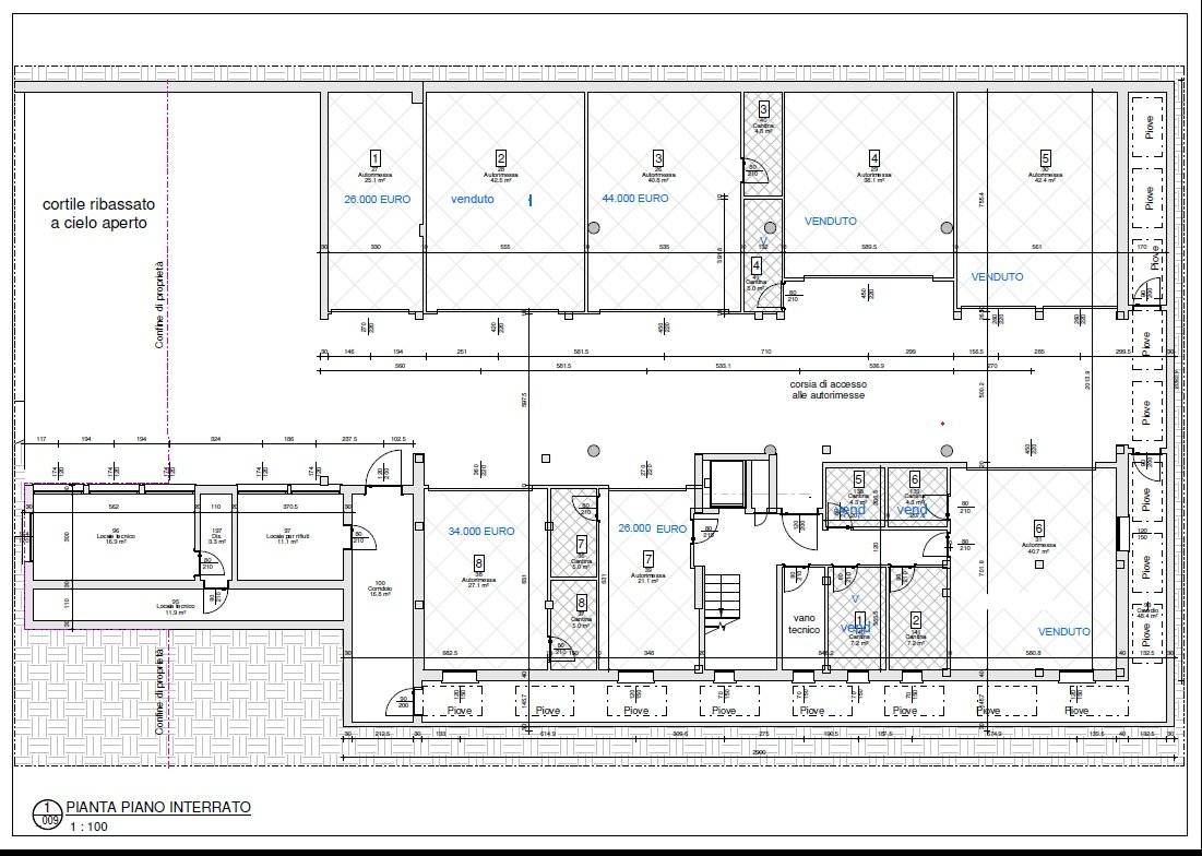
RESIDENZA BERGENIA - Consegna giugno/luglio 2026 -La tua nuova casa in uno dei quartieri più ambiti di Monza: San Giuseppe, una zona tranquilla, servita da asili scuole elementari e medie, supermercati e negozi di prima necessità, ben collegata ai mezzi di trasporto di superficie e nelle vicinanze della futura fermata della MM. Accettiamo prenotazioni in palazzina di prestigio di sole 6 unità distribuite su due piani, oltre al terzo piano attico con due appartamenti panoramici. Gli appartamenti offrono spazi luminosi e ben distribuiti ideali per soddisfare le esigenze di ogni famiglia. Saranno dotati di ogni comfort moderno e arricchiti da generosi terrazzi coperti, funzionali e ideali per pranzi o momenti di convivialità all'aperto. Possibilità di cantine e Box singoli o doppi con basculante motorizzato.
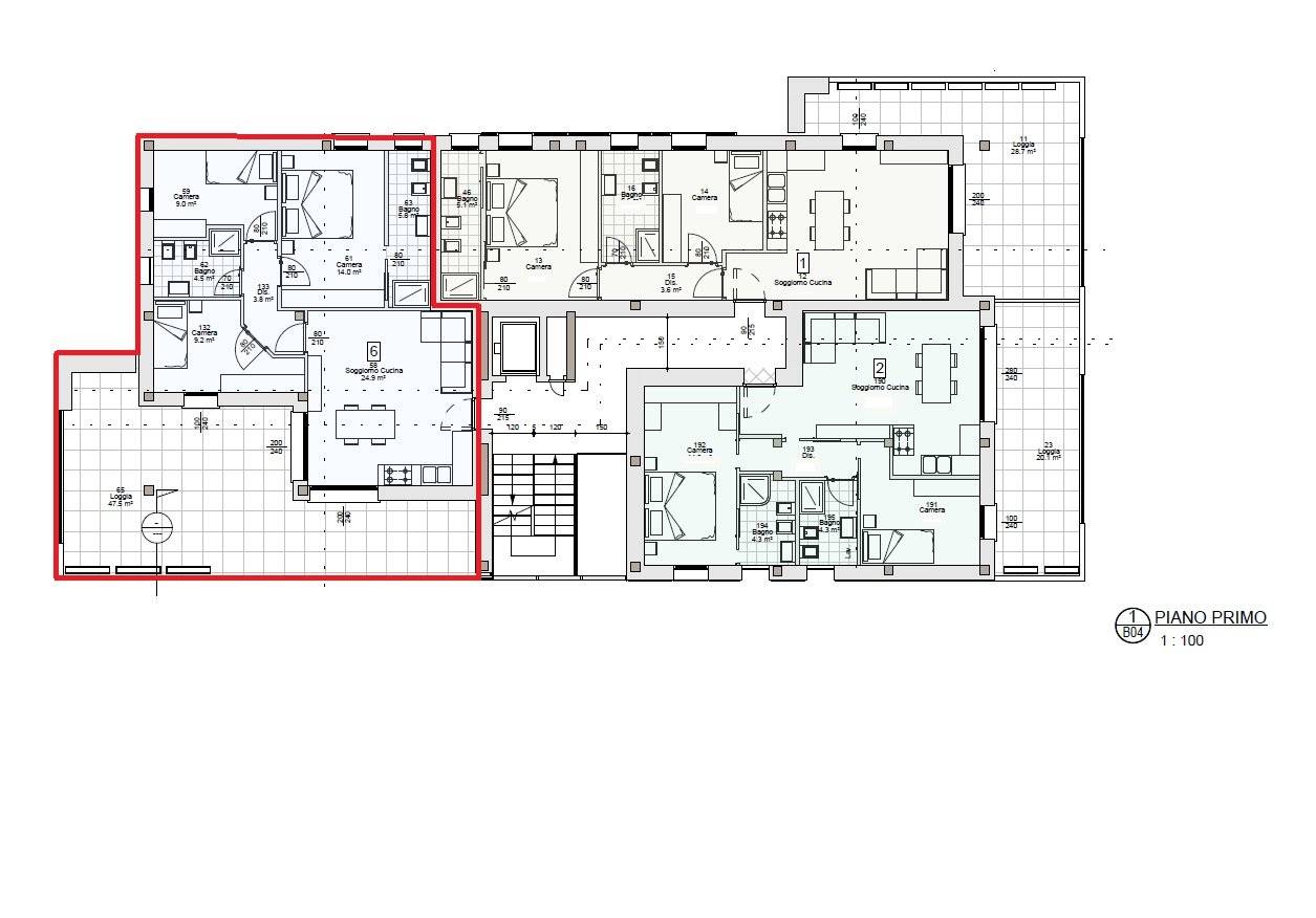
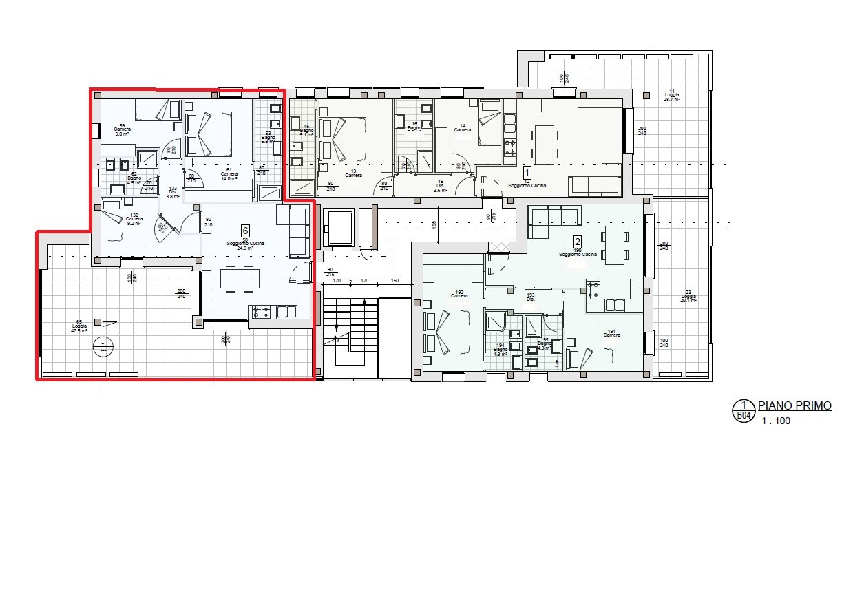
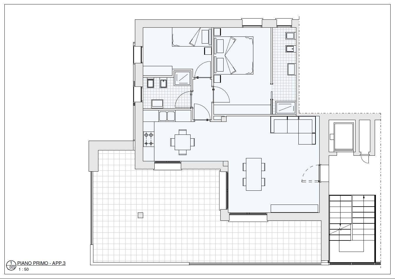
Vi proponiamo una soluzione di 4 locali composta da ingresso, soggiorno con cucina a vista con accesso diretto allo splendido terrazzo di mq. 50 esposto a ovest. La zona notte si compone di 3 camere con due servizi uno dei quali direttamente collegato alla camera matrimoniale.
Vieni a scoprire i nostri nuovi appartamenti che saranno consegnati nel giugno/luglio 2026. Prenota un appuntamento in sede, ti aspettiamo..
Vi proponiamo una soluzione di 4 locali composta da ingresso, soggiorno con cucina a vista con accesso diretto allo splendido terrazzo di mq. 50 esposto a ovest. La zona notte si compone di 3 camere con due servizi uno dei quali direttamente collegato alla camera matrimoniale.
Vieni a scoprire i nostri nuovi appartamenti che saranno consegnati nel giugno/luglio 2026. Prenota un appuntamento in sede, ti aspettiamo..
Contratto Vendita
Rif MNZ-TSC3
Prezzo € 464.000
Provincia Monza Brianza
Comune Monza
Zona - Zona San Giuseppe
Indirizzo Via Toscana 15">
Vani 4
Camere 3
Bagni 2
Classe energetica
A3 (DL 90/2013)
EPgl,nren 16,43 kwh/m2 anno
Piano 1 / 3
Riscaldamento centralizzato
Condizioni nuova costruzione
Spese condominiali € 120
Anno di costruzione 2026
Ascensore si
Cucina a vista
Descrizione | Superficie | Sup. comm. |
---|---|---|
Principali | ||
Immobile - 1° piano | 90 Mq | 90 Mqc |
Terrazza - 1° piano | 49 Mq | 29 Mqc |
Parti comuni - 1° piano | 7 Mq | 7 Mqc |
Totale | 126 Mqc |
Zoom della mappa
Apri con:
Apple Maps
Google Maps
Waze
Apri la mappa