Rif: VDN-MSC-8
VEDANO AL LAMBRO
MONZA BRIANZA € 444.000- Appartamento
- Vendita
- 145 Mq
- 4 Vani
- 3 Camere
- 2 Bagni
- EPI: 175 kwh/m2 anno
- Classe energetica: A4
- Descrizione
- Dettaglio immobile
- Consistenze
- Mappa
- Planimetrie
Vendita diretta, no provvigioni. TRADIZIONE E INNOVAZIONE, combinazione vincente per la Residenza Mirabello Living. Capitolato innovativo, alto risparmio energetico. Extra capitolato compreso nel prezzo, serramento soggiorno scorrevole, porte interne finitura matrix, impianto VMC puntuale finito.
E' un'esclusiva I PROGETTI tel. 039/2054154 e PLANET IMMOBILIARE S.R.L tel. 333/3513609. https://mirabelloliving.com/
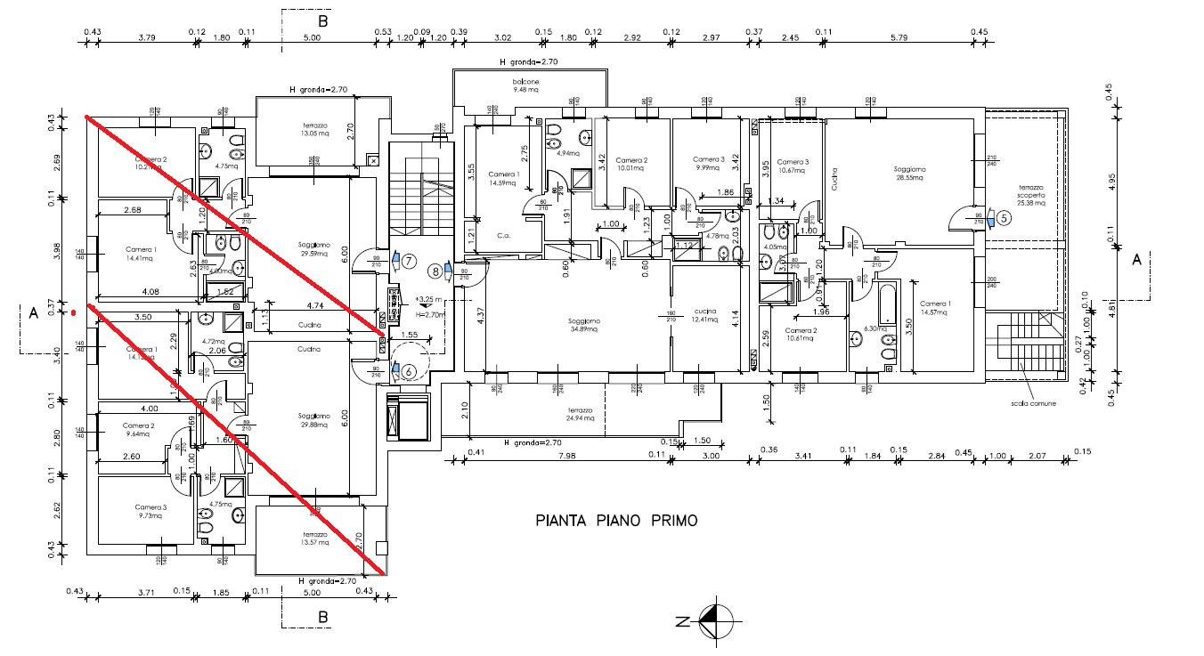
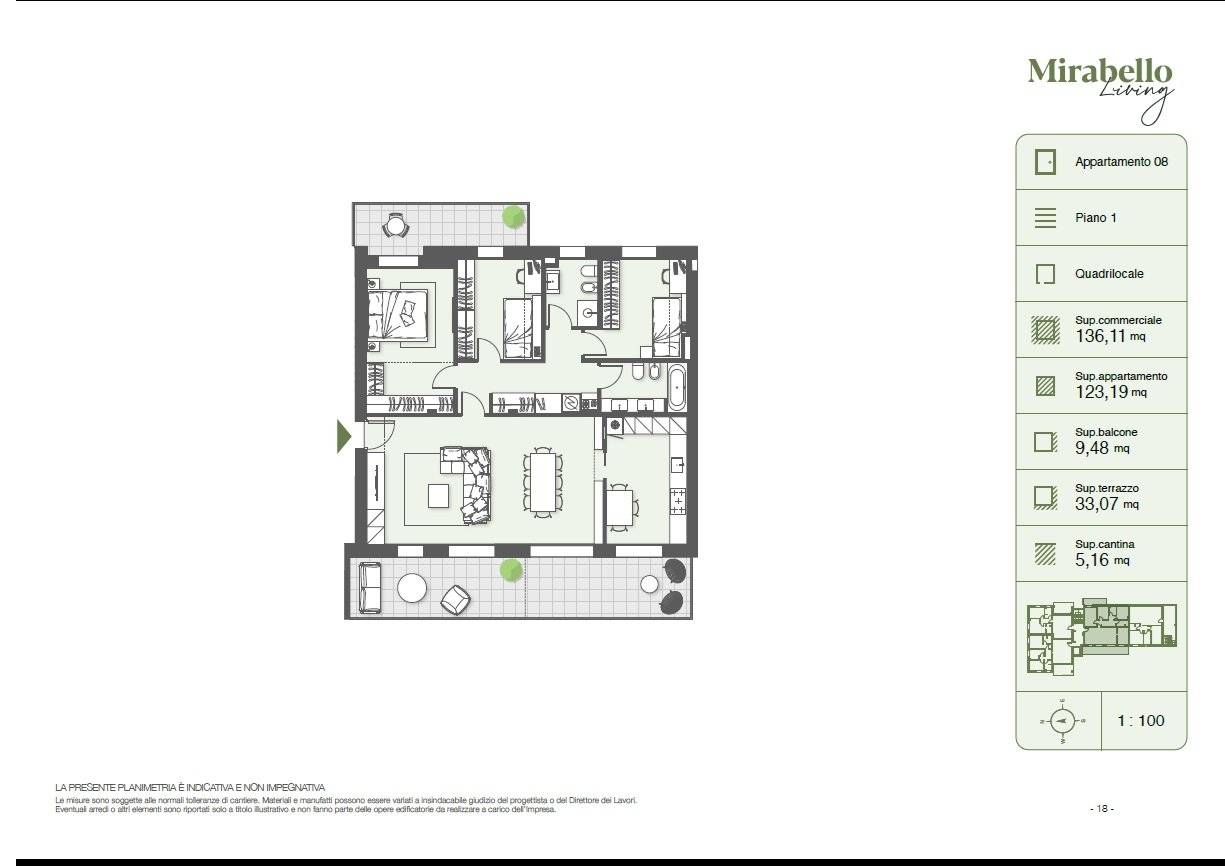
Ampio Quattro Locali al piano Primo, composto accogliente ingresso con vano guardaroba, doppia zona living ( salotto/ conversazione e pranzo ) accesso al terrazzo di mq. 24, cucina abitabile molto luminosa e spaziosa, predisposta per arredo completo angolare. Zona notte suddivisa in camera matrimoniale con cabina armadio e bagno dedicato e avente accesso al terrazzino relax riservato, due camere per ragazzi e un servizio. Corridoio della zona notte con ideale profondità per posizionare arredo/guardaroba e vano asciugatrice/lavatrice.
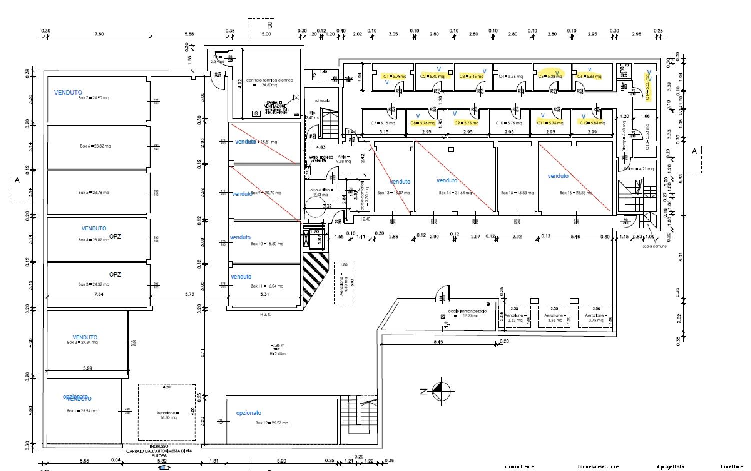
La proprietà è completa di cantina e vi è la possibilità di scegliere il box singolo o doppio.
Tutte le finiture sono disponibili e consultabili sul capitolato descrittivo delle opere allegato a questo annuncio
Questa nuova palazzina nel comune di Vedano al Lambro offre un ambiente tranquillo e residenziale, ideale per chi cerca una zona ben servita e in prossimità dei principali servizi e infrastrutture. Una comoda pista ciclabile permette di raggiungere il centro paese e il parco in totale serenità. Inoltre, la vicinanza a Monza e a Milano, raggiungibili in breve tempo, offre un'ampia gamma di opportunità lavorative e di svago.
L'alto risparmio energetico di questo appartamento è un ulteriore punto di forza, offrendo la possibilità di ridurre i costi delle bollette energetiche e contribuire alla salvaguardia dell'ambiente.
La residenza Mirabello Living, in armonia con il contesto, offre appartamenti di 3 e 4 locali con ampi spazi da vivere. Inoltre i terrazzi e i giardini privati sono un ulteriore plus per momenti di relax e di convivialità. Contattateci per le ulteriori tipologie disponibili. Fine lavori febbraio 2025
E' un'esclusiva I PROGETTI tel. 039/2054154 e PLANET IMMOBILIARE S.R.L tel. 333/3513609. https://mirabelloliving.com/
Ampio Quattro Locali al piano Primo, composto accogliente ingresso con vano guardaroba, doppia zona living ( salotto/ conversazione e pranzo ) accesso al terrazzo di mq. 24, cucina abitabile molto luminosa e spaziosa, predisposta per arredo completo angolare. Zona notte suddivisa in camera matrimoniale con cabina armadio e bagno dedicato e avente accesso al terrazzino relax riservato, due camere per ragazzi e un servizio. Corridoio della zona notte con ideale profondità per posizionare arredo/guardaroba e vano asciugatrice/lavatrice.
La proprietà è completa di cantina e vi è la possibilità di scegliere il box singolo o doppio.
Tutte le finiture sono disponibili e consultabili sul capitolato descrittivo delle opere allegato a questo annuncio
Questa nuova palazzina nel comune di Vedano al Lambro offre un ambiente tranquillo e residenziale, ideale per chi cerca una zona ben servita e in prossimità dei principali servizi e infrastrutture. Una comoda pista ciclabile permette di raggiungere il centro paese e il parco in totale serenità. Inoltre, la vicinanza a Monza e a Milano, raggiungibili in breve tempo, offre un'ampia gamma di opportunità lavorative e di svago.
L'alto risparmio energetico di questo appartamento è un ulteriore punto di forza, offrendo la possibilità di ridurre i costi delle bollette energetiche e contribuire alla salvaguardia dell'ambiente.
La residenza Mirabello Living, in armonia con il contesto, offre appartamenti di 3 e 4 locali con ampi spazi da vivere. Inoltre i terrazzi e i giardini privati sono un ulteriore plus per momenti di relax e di convivialità. Contattateci per le ulteriori tipologie disponibili. Fine lavori febbraio 2025
Contratto Vendita
Rif VDN-MSC-8
Prezzo € 444.000
Provincia Monza Brianza
Comune Vedano al Lambro
Indirizzo Via Europa 104">
Vani 4
Camere 3
Bagni 2
Classe energetica
A4 (DL 90/2013)
EPgl,nren 175 kwh/m2 anno
Piano 1 / 3
Riscaldamento centralizzato
Condizioni nuova costruzione
Spese condominiali € 150
Anno di costruzione 2025
Ascensore si
Cucina abitabile
| Descrizione | Superficie | Sup. comm. |
|---|---|---|
| Principali | ||
| Immobile - 1° piano | 123 Mq | 123 Mqc |
| Balcone - 1° piano | 9 Mq | 4 Mqc |
| Terrazza - 1° piano | 25 Mq | 9 Mqc |
| Cantina - seminterrato | 5 Mq | 2 Mqc |
| Parti comuni - 1° piano | 138 Mq | 7 Mqc |
| Totale | 145 Mqc | |
Zoom della mappa
Apri con:
Apple Maps
Google Maps
Waze
Apri la mappa







