Rif: MNZ-TSC1
MONZA
MONZA BRIANZA | - zona San Giuseppe € 372.000- Appartamento
- Vendita
- 106 Mq
- 3 Vani
- 2 Camere
- 2 Bagni
- EPI: 16,43 kwh/m2 anno
- Classe energetica: A3
- Descrizione
- Dettaglio immobile
- Consistenze
- Mappa
- Planimetrie
SISMA BONUS ACQUISTI EURO 36.000 RESIDENZA BERGENIA - Consegna giugno/luglio 2026. La tua nuova casa in uno dei quartieri più ambiti di Monza: San Giuseppe, una zona tranquilla, servita da asili scuole elementari e medie, supermercati e negozi di prima necessità, ben collegata ai mezzi di trasporto di superficie e nelle vicinanze della futura fermata della MM. Accettiamo prenotazioni in palazzina di prestigio di sole 6 unità distribuite su due piani, oltre al terzo piano attico con due appartamenti panoramici. Gli appartamenti offrono spazi luminosi e ben distribuiti ideali per soddisfare le esigenze di ogni famiglia. Saranno dotati di ogni comfort moderno e arricchiti da generosi terrazzi coperti, funzionali e ideali per pranzi o momenti di convivialità all'aperto. Possibilità di cantine e Box singoli o doppi.
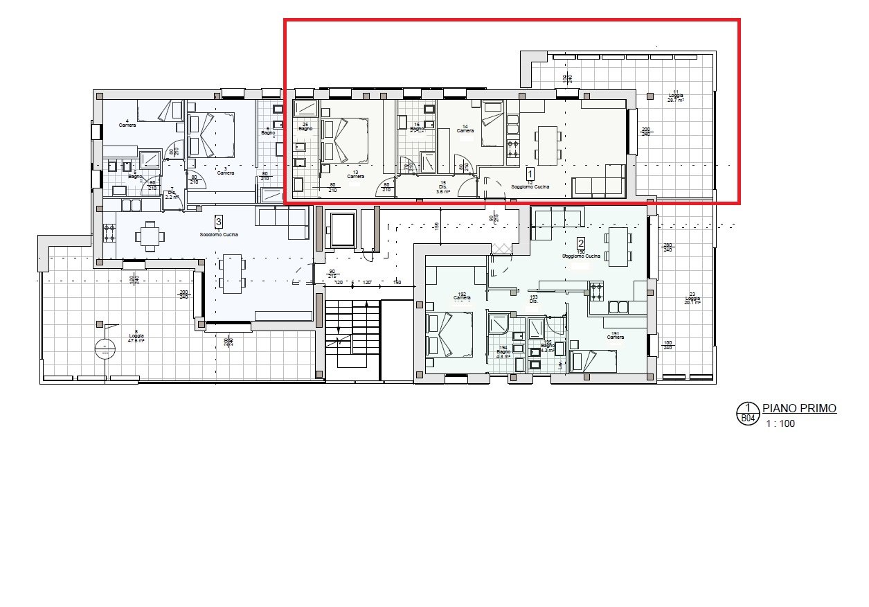
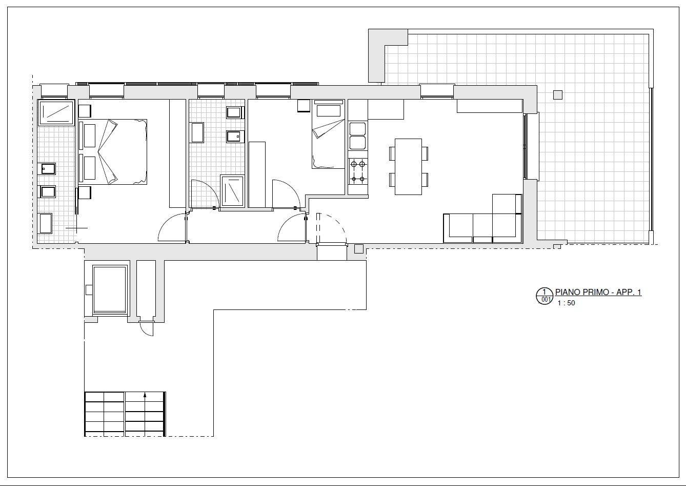
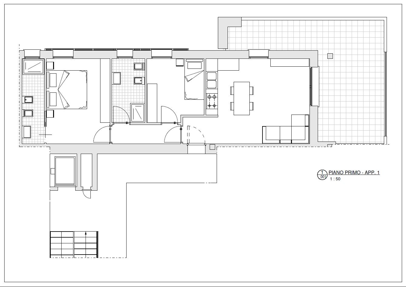
Vi proponiamo una soluzione di Tre locali composta da ingresso, ampio soggiorno con cucina vista che affaccia su uno splendido terrazzo di mq. 31 con possibilità di realizzare una serra bioclimatica che permette di godere degli spazi verdi tutto l'anno creando un ambiente confortevole e salutare. La zona notte si compone di due camere con due servizi uno dei quali direttamente collegato alla camera matrimoniale.
Vieni a scoprire i nostri nuovi appartamenti che saranno consegnati nel giugno/luglio 2026. Prenota un appuntamento in sede, ti aspettiamo..
Vi proponiamo una soluzione di Tre locali composta da ingresso, ampio soggiorno con cucina vista che affaccia su uno splendido terrazzo di mq. 31 con possibilità di realizzare una serra bioclimatica che permette di godere degli spazi verdi tutto l'anno creando un ambiente confortevole e salutare. La zona notte si compone di due camere con due servizi uno dei quali direttamente collegato alla camera matrimoniale.
Vieni a scoprire i nostri nuovi appartamenti che saranno consegnati nel giugno/luglio 2026. Prenota un appuntamento in sede, ti aspettiamo..
Contratto Vendita
Rif MNZ-TSC1
Prezzo € 372.000
Provincia Monza Brianza
Comune Monza
Zona - Zona San Giuseppe
Indirizzo Via Toscana 15">
Vani 3
Camere 2
Bagni 2
Classe energetica
A3 (DL 90/2013)
EPgl,nren 16,43 kwh/m2 anno
Piano 1 / 3
Riscaldamento centralizzato
Condizioni nuova costruzione
Spese condominiali € 120
Anno di costruzione 2026
Ascensore si
Cucina a vista
Descrizione | Superficie | Sup. comm. |
---|---|---|
Principali | ||
Immobile - 1° piano | 80 Mq | 80 Mqc |
Terrazza - 1° piano | 31 Mq | 19 Mqc |
Parti comuni - 1° piano | 7 Mq | 7 Mqc |
Totale | 106 Mqc |
Zoom della mappa
Apri con:
Apple Maps
Google Maps
Waze
Apri la mappa