Rif: VDN-MSC-9
VEDANO AL LAMBRO
MONZA BRIANZA € 367.500- Appartamento
- Vendita
- 110 Mq
- 4 Vani
- 3 Camere
- 2 Bagni
- EPI: 175 kwh/m2 anno
- Classe energetica: A4
- Descrizione
- Dettaglio immobile
- Consistenze
- Mappa
- Planimetrie
Vendita diretta, no provvigioni. Novità! Prossima realizzazione. TRADIZIONE E INNOVAZIONE, combinazione vincente per la Residenza Mirabello Living. Capitolato innovativo, alto risparmio energetico. Extra capitolato compreso nel prezzo, serramento soggiorno scorrevole, porte interne finitura matrix, impianto VMC puntuale finito.
E' un'esclusiva I PROGETTI tel. 039/2054154
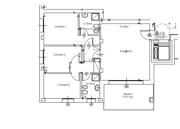
Ottimo 4 Locali composto da una zona living con cucina a vista molto luminosa e spaziosa, grazie all'ampia vetrata si accede al terrazzo coperto di mq. 13 attrezzabile per la zona pranzo, area conversazione e barbecue.
La zona notte è suddivisa in camera matrimoniale con bagno dedicato, 2 camere per ragazzi e bagno . La proprietà è completa di cantina e vi è la possibilità di scegliere il box singolo grande
Tutte le finiture sono disponibili e consultabili sul capitolato descrittivo delle opere allegato a questo annuncio
Questa nuova palazzina nel comune di Vedano al Lambro offre un ambiente tranquillo e residenziale, ideale per chi cerca una zona ben servita e in prossimità dei principali servizi e infrastrutture. Una comoda pista ciclabile permette di raggiungere il centro paese e il parco in totale serenità. Inoltre, la vicinanza a Monza e a Milano, raggiungibili in breve tempo, offre un'ampia gamma di opportunità lavorative e di svago.
L'alto risparmio energetico di questo appartamento è un ulteriore punto di forza, offrendo la possibilità di ridurre i costi delle bollette energetiche e contribuire alla salvaguardia dell'ambiente.
La residenza Mirabello Living, in armonia con il contesto, offre appartamenti di 3 e 4 locali con ampi spazi da vivere. Inoltre i terrazzi e i giardini privati sono un ulteriore plus per momenti di relax e di convivialità. Contattateci per le ulteriori tipologie disponibili.
Valutiamo la vendita del tuo immobile.
Fine lavori febbraio 2026
E' un'esclusiva I PROGETTI tel. 039/2054154
Ottimo 4 Locali composto da una zona living con cucina a vista molto luminosa e spaziosa, grazie all'ampia vetrata si accede al terrazzo coperto di mq. 13 attrezzabile per la zona pranzo, area conversazione e barbecue.
La zona notte è suddivisa in camera matrimoniale con bagno dedicato, 2 camere per ragazzi e bagno . La proprietà è completa di cantina e vi è la possibilità di scegliere il box singolo grande
Tutte le finiture sono disponibili e consultabili sul capitolato descrittivo delle opere allegato a questo annuncio
Questa nuova palazzina nel comune di Vedano al Lambro offre un ambiente tranquillo e residenziale, ideale per chi cerca una zona ben servita e in prossimità dei principali servizi e infrastrutture. Una comoda pista ciclabile permette di raggiungere il centro paese e il parco in totale serenità. Inoltre, la vicinanza a Monza e a Milano, raggiungibili in breve tempo, offre un'ampia gamma di opportunità lavorative e di svago.
L'alto risparmio energetico di questo appartamento è un ulteriore punto di forza, offrendo la possibilità di ridurre i costi delle bollette energetiche e contribuire alla salvaguardia dell'ambiente.
La residenza Mirabello Living, in armonia con il contesto, offre appartamenti di 3 e 4 locali con ampi spazi da vivere. Inoltre i terrazzi e i giardini privati sono un ulteriore plus per momenti di relax e di convivialità. Contattateci per le ulteriori tipologie disponibili.
Valutiamo la vendita del tuo immobile.
Fine lavori febbraio 2026
Contratto Vendita
Rif VDN-MSC-9
Prezzo € 367.500
Provincia Monza Brianza
Comune Vedano al Lambro
Indirizzo Via Europa 104">
Vani 4
Camere 3
Bagni 2
Classe energetica
A4 (DL 90/2013)
EPgl,nren 175 kwh/m2 anno
Piano 2 / 3
Riscaldamento centralizzato
Condizioni nuova costruzione
Spese condominiali € 130
Anno di costruzione 2026
Ascensore si
Cucina a vista
| Descrizione | Superficie | Sup. comm. |
|---|---|---|
| Principali | ||
| Immobile - 2° piano | 96 Mq | 96 Mqc |
| Terrazza - 2° piano | 14 Mq | 7 Mqc |
| Cantina - seminterrato | 6 Mq | 2 Mqc |
| Parti comuni - 2° piano | 105 Mq | 5 Mqc |
| Totale | 110 Mqc | |
Zoom della mappa
Apri con:
Apple Maps
Google Maps
Waze
Apri la mappa







