Rif: MNZ-TSC7
MONZA
MONZA BRIANZA | - zona San Giuseppe € 619.000- Attico
- Vendita
- 170 Mq
- 4 Vani
- 3 Camere
- 2 Bagni
- EPI: 16,43 kwh/m2 anno
- Classe energetica: A3
- Descrizione
- Dettaglio immobile
- Consistenze
- Mappa
- Planimetrie
SISMA BONUS ACQUISTI EURO 36.000 - RESIDENZA BERGENIA - Consegna settembre 2026- La tua nuova casa in uno dei quartieri più ambiti di Monza: San Giuseppe, una zona tranquilla, servita da asili scuole elementari e medie, supermercati e negozi di prima necessità, ben collegata ai mezzi di trasporto di superficie e nelle vicinanze della futura fermata della MM. In palazzina di prestigio di sole 6 unità distribuite su due piani, oltre al terzo piano attico con due appartamenti panoramici. Gli appartamenti offrono spazi luminosi e ben distribuiti ideali per soddisfare le esigenze di ogni famiglia. Saranno dotati di ogni comfort moderno e arricchiti da generosi terrazzi coperti, funzionali e ideali per pranzi o momenti di convivialità all'aperto. Possibilità di cantine e Box singoli o doppi con basculanti motorizzate .
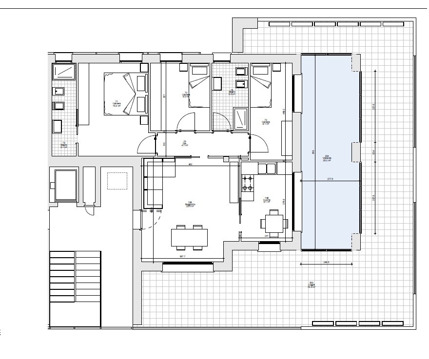
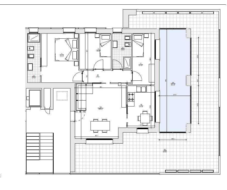
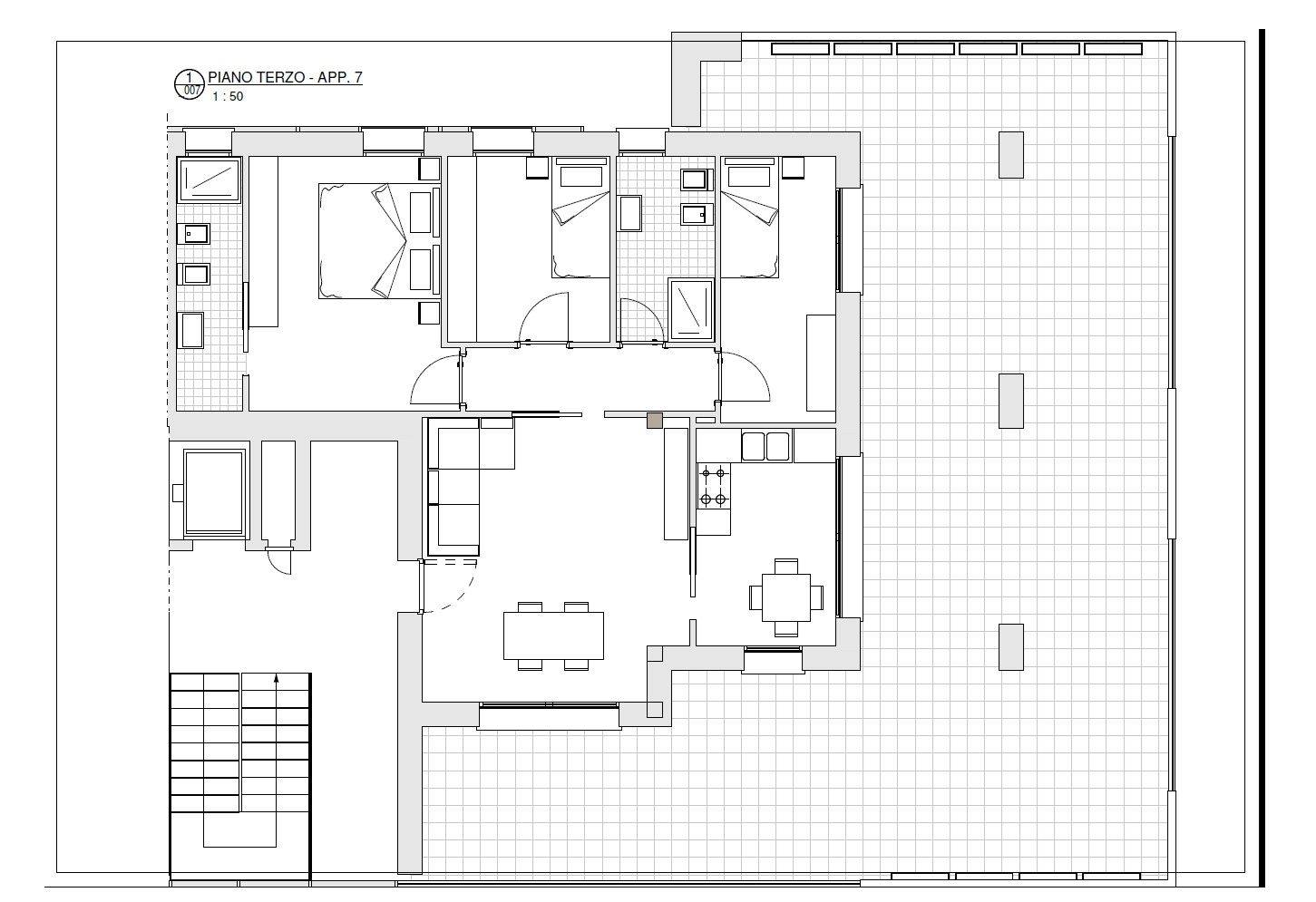
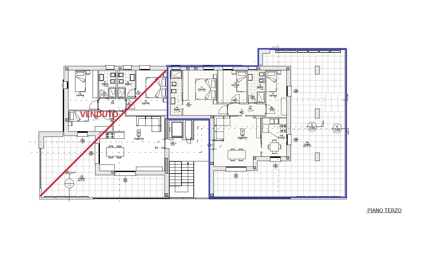
Vi proponiamo una esclusiva soluzione al piano 3° Attico di 4 locali composto da ingresso, soggiorno con cucina abitabile che affaccia su uno splendido panoramico terrazzo di mq. 100 con tripla esposizione. La zona notte si compone di 3 camere con due servizi uno dei quali direttamente collegato alla camera matrimoniale. Possibilità Veranda/serra bioclimatica di mq. 25 con affaccio a sud
Vieni a scoprire i nostri nuovi appartamenti che saranno consegnati nel settembre 2026. Prenota un appuntamento in sede, ti aspettiamo..
Vi proponiamo una esclusiva soluzione al piano 3° Attico di 4 locali composto da ingresso, soggiorno con cucina abitabile che affaccia su uno splendido panoramico terrazzo di mq. 100 con tripla esposizione. La zona notte si compone di 3 camere con due servizi uno dei quali direttamente collegato alla camera matrimoniale. Possibilità Veranda/serra bioclimatica di mq. 25 con affaccio a sud
Vieni a scoprire i nostri nuovi appartamenti che saranno consegnati nel settembre 2026. Prenota un appuntamento in sede, ti aspettiamo..
Contratto Vendita
Rif MNZ-TSC7
Prezzo € 619.000
Provincia Monza Brianza
Comune Monza
Zona - Zona San Giuseppe
Indirizzo Via Toscana 15">
Vani 4
Camere 3
Bagni 2
Classe energetica
A3 (DL 90/2013)
EPgl,nren 16,43 kwh/m2 anno
Piano 3 / 3
Riscaldamento centralizzato
Condizioni nuova costruzione
Spese condominiali € 120
Anno di costruzione 2026
Ascensore si
Cucina abitabile
| Descrizione | Superficie | Sup. comm. |
|---|---|---|
| Principali | ||
| Immobile - 3° piano | 100 Mq | 100 Mqc |
| Terrazza - 3° piano | 105 Mq | 63 Mqc |
| Parti comuni - 3° piano | 7 Mq | 7 Mqc |
| Totale | 170 Mqc | |
Zoom della mappa
Apri con:
Apple Maps
Google Maps
Waze
Apri la mappa







